ATTICO PANORAMICO MARE

In vendita
220.000 €
Appartamento
Categoria
70
m2
3
Locali
Descrizione
BELLARIA

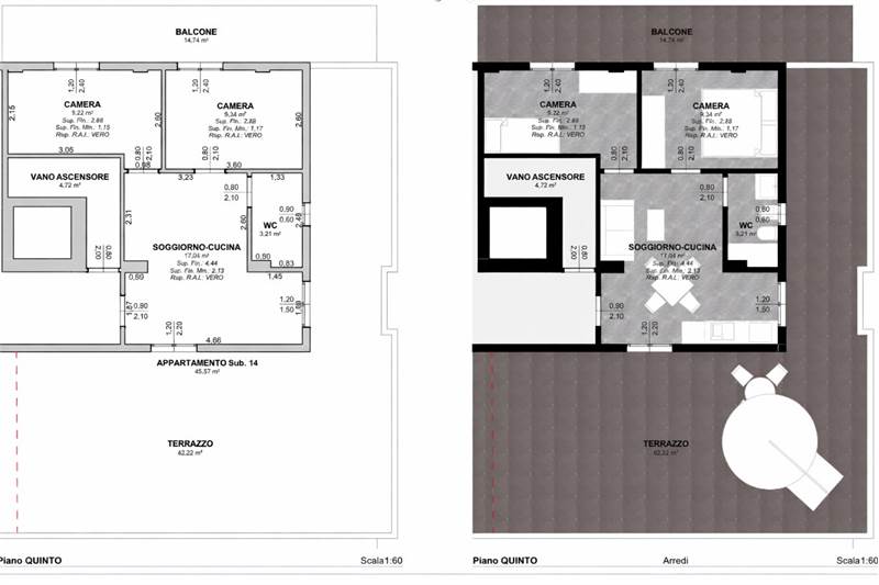
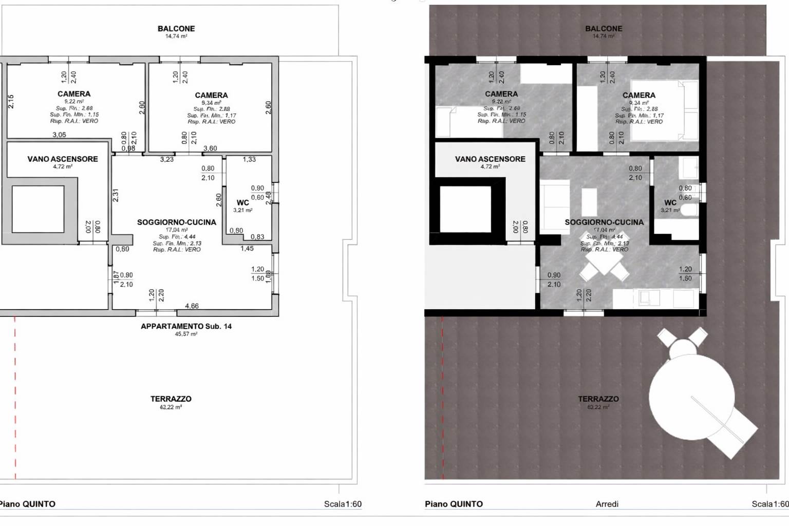
Proponiamo in vendita splendido attico in fase di completa ristrutturazione, dotato di ampia terrazza panoramica con vista mare, situato a soli 100 metri dalla spiaggia di Bellaria e a pochi passi dal viale principale.

L’appartamento si compone di luminoso soggiorno con angolo cottura e accesso diretto alla terrazza, due camere da letto e bagno finestrato con box doccia.

Riscaldamento autonomo con caldaia nuova, infissi ultima generazione, impianti nuovi.

Nelle immediate vicinanze sono disponibili numerosi parcheggi pubblici.

Soluzione ideale sia come residenza principale, sia come casa vacanze o investimento.

Occasione imperdibile!

N. B. La presente inserzione non costituisce elemento contrattuale, pertanto le informazioni in essa riportante quali descrizione, planimetrie, misure e posizione sono da ritenersi del tutto indicative e non potranno essere utilizzate come parte integrante di un eventuale contratto di vendita della proprietà, non vincolando quindi in alcun modo l’agenzia immobiliare.
Caratteristiche principali
Codice:
V000363
Categoria:
Appartamento
Locali:
3
Mq:
70
Classe energetica:
G
Stato Immobile:
Ristrutturato
Accessori
Aria Condizionata
Ascensore
Doppi Vetri
Porta Blindata
Veranda
Planimetrie
Cookie preference